Sở hữu một lô đất không vuông vức thường tạo cảm giác thiếu an tâm trước khi xây nhà. Nỗi lo phổ biến là: phòng sẽ bị xéo, diện tích bị hao hụt, chi phí thi công dễ tăng.
Nhưng hình dạng khu đất không quyết định chất lượng không gian sống. Điều quyết định nằm ở cách tổ chức mặt bằng và kiểm soát kết cấu ngay từ đầu.
Với nhà phố xây để ở lâu dài, đất méo không phải là trở ngại nếu tiếp cận đúng hướng.
Khi phần đất bị vát nằm ở phía trước, vấn đề không chỉ nằm ở mặt bằng mà còn ở hình khối công trình.
Nếu xử lý không khéo, mặt tiền sẽ bị hụt, thiếu sự vững chãi. Không gian tầng trên có thể bị thu nhỏ để “né” phần méo, dẫn đến ban công hẹp và thiếu chiều sâu.
Vì vậy, câu hỏi không phải là làm sao để giấu phần đất vát, mà là: Làm thế nào để khối kiến trúc phía trên xử lý được phần lệch phía dưới?

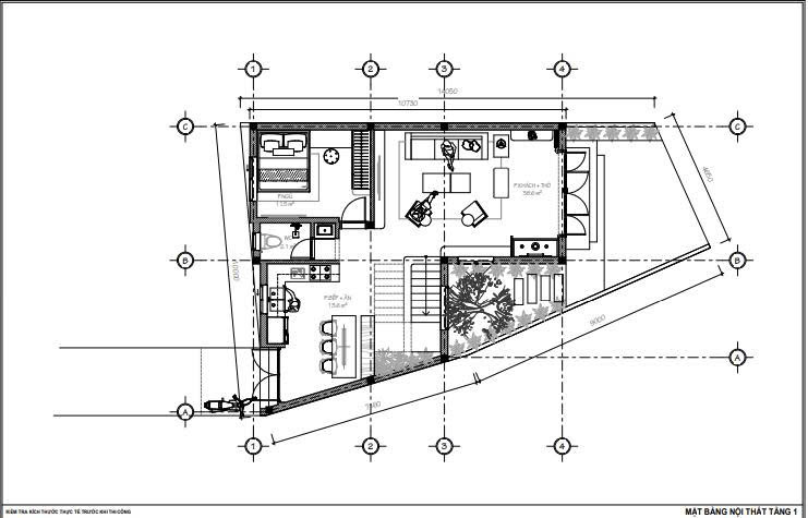
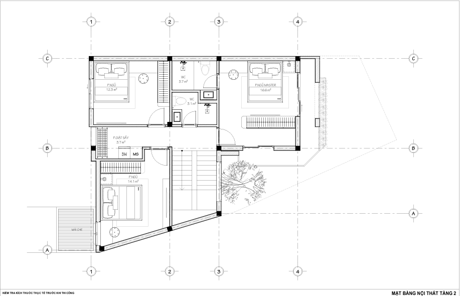
Ở phương án này, phần đất bị vát phía trước không bị thu lại theo ranh giới lô đất. Thay vào đó, tầng 2 được tổ chức với ban công chữ L đua ra phía ngoài, tạo một khối kiến trúc chủ động hơn.
Giải pháp này đồng thời gia tăng diện tích sử dụng cho tầng trên, tạo lớp che nắng mưa tự nhiên cho tầng trệt và làm “mờ” cảm giác lệch của phần đất phía dưới. Khối ban công không chỉ là phần mở rộng công năng, mà còn đóng vai trò như một lớp cân bằng thị giác, giúp mặt tiền có chiều sâu và cảm giác vững chãi hơn.

Ngôn ngữ thiết kế được lựa chọn là hiện đại, với các mảng tường phẳng, rõ ràng và ít chi tiết thừa. Trên nền đó, ô cửa vòm lớn ở tầng 2 xuất hiện như một điểm chuyển nhịp. Đường cong này không làm mất đi tính hiện đại, mà giúp công trình mềm mại hơn giữa những khối vuông.
Khối ban công đua ngang tạo lực đẩy thị giác theo phương ngang, trong khi cửa vòm và hệ cửa sổ nhỏ được sắp xếp có nhịp điệu giúp mặt đứng không bị đơn điệu. Nhờ sự phối hợp này, công trình giữ được bố cục ổn định và hài hòa, dù nền đất bên dưới không hoàn toàn vuông vức.

Màu trắng chủ đạo giúp công trình giữ được sự nhẹ nhàng, đặc biệt khi đặt trong bối cảnh khu phố hiện hữu. Phần tầng trệt được ốp đá xám tạo cảm giác chắc chắn cho khối đế. Sự chuyển sắc giữa trắng và xám giúp mặt tiền có chiều sâu mà không cần quá nhiều chi tiết trang trí.
Dải cây xanh bố trí dọc theo ban công không chỉ dừng lại ở yếu tố thẩm mỹ. Mảng xanh này làm mềm các đường biên của khối bê tông, đồng thời giảm bức xạ nhiệt tác động trực tiếp lên công trình và tạo một lớp đệm tự nhiên giữa không gian bên trong với môi trường bên ngoài. Khi kết hợp cùng hệ ánh sáng hắt trần, tổng thể kiến trúc đạt được sự cân bằng về thị giác, tạo cảm giác dễ chịu và ổn định trong trải nghiệm sử dụng lâu dài.

Thay vì tìm cách “làm vuông” khu đất, điều quan trọng là tổ chức công trình để phần lệch không ảnh hưởng đến công năng. Khi hình khối được xử lý hợp lý, không gian bên trong vẫn giữ được sự vuông vức, dễ sử dụng và thuận tiện bố trí nội thất.
Đồng thời, hệ kết cấu rõ ràng giúp thi công ổn định và kiểm soát chi phí ngay từ đầu. Cuối cùng, hình dạng khu đất chỉ là điều kiện ban đầu tư duy thiết kế mới là yếu tố quyết định chất lượng không gian sống.

Nếu bạn đang sở hữu một khu đất có phần vát mặt tiền và chưa rõ nên xử lý theo hướng nào, việc trao đổi sớm về phương án kiến trúc sẽ giúp nhìn rõ hơn những khả năng có thể khai thác trước khi tính đến bài toán chi phí cụ thể.